
Pagar keselamatan logam dihasilkan oleh Liweiyuan, pengeluar struktur keluli Cina profesional. Jaminan Jualan Langsung Kilang Kualiti Dijamin. Mereka digunakan secara meluas sebagai peranti keselamatan untuk dinding, pagar, dan kandang. Kami mengalu -alukan pertanyaan anda!
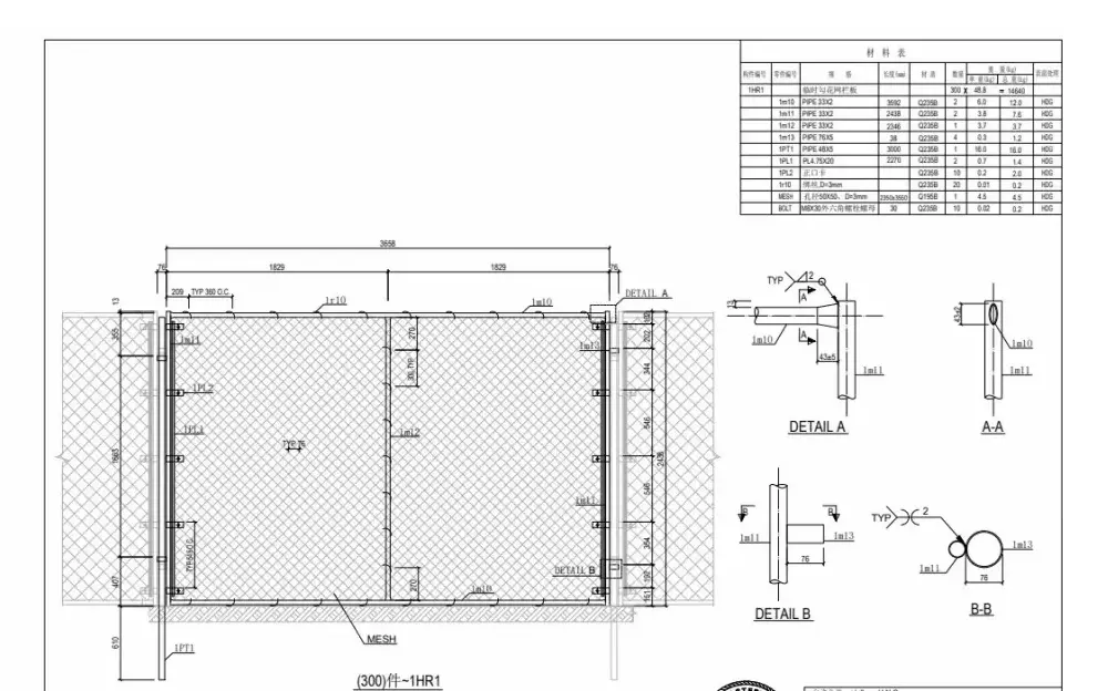
Komponen struktur utama pagar keselamatan logam Liweiyuan termasuk bingkai, rasuk membujur, penyambung, dan jawatan sokongan. Bingkai ini terutamanya dibina dari pelbagai bahan logam dan datang dalam pelbagai bentuk untuk memenuhi keperluan reka bentuk individu. Bahan bingkai terutamanya termasuk lembaran keluli tergalvani, paip bulat tergalvani, paip persegi tergalvani, dan pagar pautan rantai. Bahan -bahan ini dipilih untuk ketahanan dan ketahanan kakisan mereka. Rasuk membujur ditetapkan di antara bingkai pagar, meningkatkan kekuatan dan ketangguhan mereka, menjadikannya lebih stabil dan boleh dipercayai.
Penyambung adalah komponen utama yang menghubungkan pagar ke jawatan sokongan. Kami menggunakan lembaran keluli tergalvani, keluli bulat tergalvani, dan paip tergalvani. Bahan -bahan ini menawarkan rintangan angin dan gempa yang sangat baik, mencegah melonggarkan semasa penggunaan dan memastikan keselamatan dan kestabilan pagar. Jawatan sokongan adalah komponen sokongan utama pagar. Kita boleh menggunakan pelbagai jawatan sokongan bergantung kepada lokasi, keperluan, dan persekitaran. Walau bagaimanapun, bahan -bahan yang digunakan untuk jawatan ini mesti mempunyai kestabilan yang tinggi, rintangan angin dan gempa bumi, dan ketahanan untuk memastikan keselamatan semasa digunakan.


Pagar keselamatan logam kami boleh ditanggalkan dan boleh diguna semula. Kaedah ketinggian, lebar, dan sambungan mereka boleh direka dan dihasilkan untuk memenuhi keperluan pelanggan dan senario aplikasi, memastikan keselamatan dan keramahan alam sekitar.


Pagar keselamatan logam kami secara berkesan memisahkan tapak pembinaan dari bangunan dan jalan lain, mewujudkan ruang kerja terpencil. Mereka boleh dibongkar dan disusun semula seperti yang diperlukan.
Jaring pengasingan bengkel biasanya digunakan dalam bengkel perindustrian sebagai peralatan keselamatan, terutamanya untuk menunaikan kawasan kerja, mengasingkan peralatan berbahaya, dan melindungi pekerja.
Produk kami juga boleh digunakan sebagai pagar gudang dalaman untuk melindungi kawasan kerja dalaman. Mereka digunakan secara meluas dalam pelbagai kemudahan penyimpanan, seperti gudang, pusat logistik, dan kilang.
Saiz umum untuk pagar keselamatan logam liweiyuan termasuk: 2 meter panjang dengan tinggi 1.5 meter; 2.5 meter panjang dengan tinggi 2 meter; dan 3 meter panjang dengan tinggi 2.5 meter. Saiz tersuai disediakan. Bahan keluli termasuk Q235B, Q355B, A36, dan A572, memenuhi piawaian Eropah dan Amerika.
